· 報價透明100%· 成本節約20%· 工期縮短30%
行業類型:辦公室裝修
風格類型:現代
項目面積:680㎡
項目設計師:聶舒淇、李嘉俊
項目地址:廣州市番禺區意庫3棟4F
項目施工:深圳市國建建筑裝飾工程有限公司
交付時間:2020年8月
蘑菇物聯自2016年成立以來,自主研發硬件(蘑菇云盒、邊緣智能服務器)、工業軟件(蘑菇圈IEM、蘑菇圈ICRM、云運維、云智控)和云平臺服務(蘑菇云)。
蘑菇物聯掌握空壓站智能控制的核心技術,創新融合4大技術:邊緣計算技術、多參數多約束條件控制算法技術、窄帶恒壓技術和AI計算技術,成功研發出空壓站“云智控”節能管理系統。
蘑菇物聯2020年新成立廣州研發辦公室,我司為其提供設計、軟硬裝及機電空調設計施工。

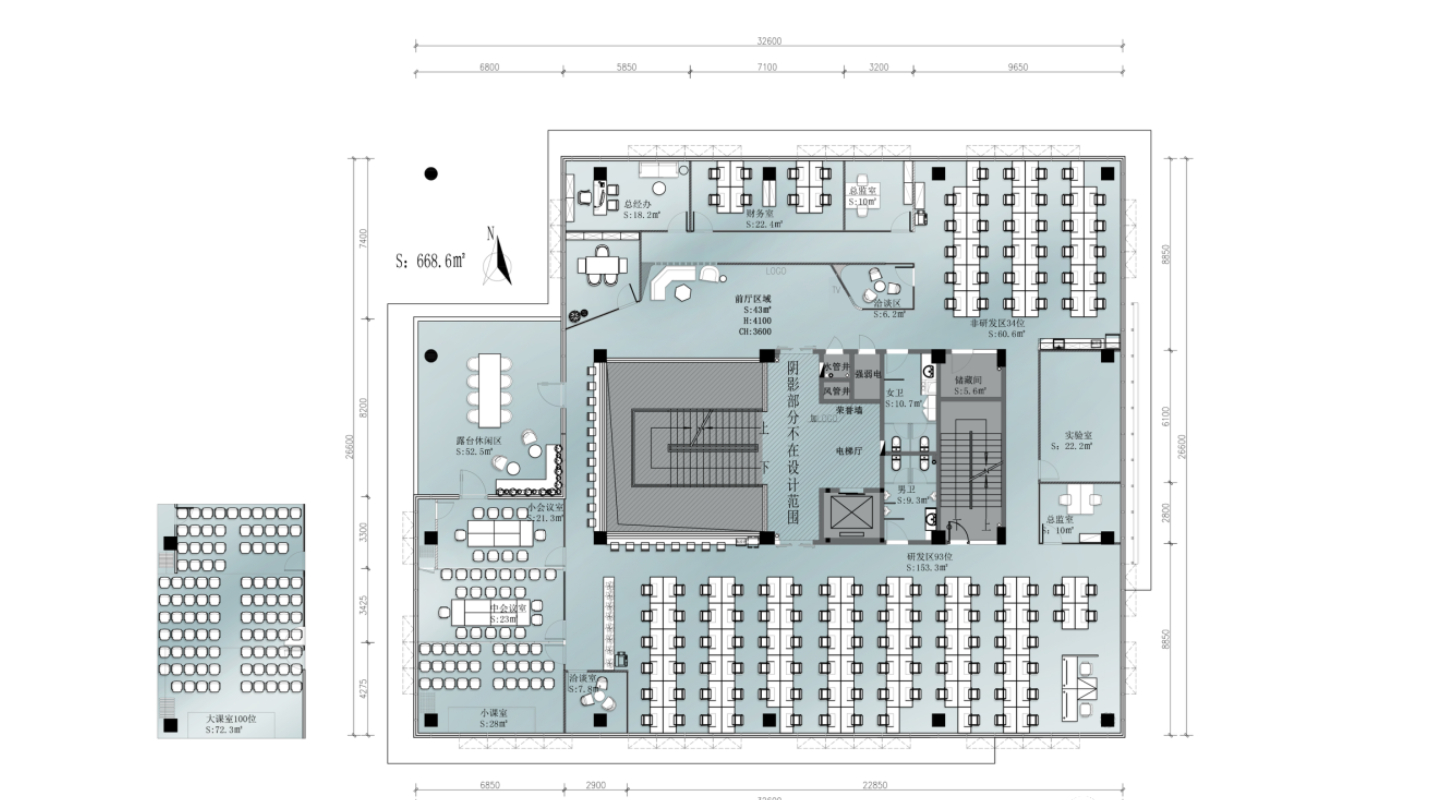
▲蘑菇物聯新辦公空間平面方案
蘑菇物聯的新辦公空間位于廣州市番禺區意庫3棟4F,科技產業需要組建睿智大腦和充滿活力的團隊,反映在團隊建設和工作環境中,則體現開放,靈活和文化厚度的辦公氛圍。
▼前廳

▲前廳區域是文化內涵與風格集中表現所在地,也是客人二次分流的場所,前廳的設計突出現代高效簡潔的特點,同時反映出辦公空間的人文氣質。
▼開放辦公空間

▲作為科技生產型企業,辦公空間不僅是科技研發的發生場所,而且是樹立企業形象,展示人文關懷的載體,同時工作內容差異多元化,靈活自由度高,因此在辦公區、休閑區,設計師利用不同的色彩打造無障礙的工作交流空間,激發員工的創意性。
▼茶室

▼大會議室

▲會議室內,設計師大膽運用線條,天花、墻面均輔之以黑色線條元素,在視覺上延伸了整個空間,層次更豐富,簡約而時尚。
▼洽談室

▼總經理辦公室

▲總裁辦公室擁有最優秀的視覺風光景致,柜體設計與辦公家具組合都展現出該企業的時尚前沿感
Free design plan appointment
預約熱線:0755-3397 8150


0755-3397 8150